Baerz & Co is een landelijk samenwerkingsverband van zorgvuldig geselecteerde boutique luxury makelaars. Samen vormen wij één netwerk, met één gedeeld aanbod. De woningen die u op onze website ziet, zijn afkomstig van alle aangesloten kantoren binnen Baerz & Co. Daardoor is niet ieder object rechtstreeks door ons kantoor in verkoop, maar door een gespecialiseerde collega binnen ons netwerk. Heeft u een woning gevonden die u aanspreekt en wilt u meer informatie? Dan brengen wij u graag persoonlijk in contact met de betreffende verkoopmakelaar, zodat u direct en zorgvuldig wordt begeleid.

AMSTERDAM
Keizersgracht 699 D - 1017 DW
Netherlands

Freek van Camp profile image
Freek van Camp
Real Estate Agent
€1,000,000 k.k.
Living Area
81m2
Plot Size
N/A
Bedrooms
3

Description

The Perfect Combination of Luxury and Location: Keizersgracht 699
Another impressive development by ROCK Vastgoed!
Three impeccably finished apartments overlooking the Keizersgracht canal. No expense has been spared in the renovation of this beautiful listed building. A rare opportunity to live on one of Amsterdam’s most iconic canals.

Keizersgracht 699-D, 1017 DW Amsterdam

Location & Accessibility
This magnificent historic canal house is located on the Keizersgracht, between Utrechtsestraat and Reguliersgracht. Surrounded by galleries, world-class museums, charming restaurants, artisan coffee bars, and the stylish Utrechtsestraat – everything that makes Amsterdam so beloved is just a short stroll away. Highlights include the Stopera, Royal Theatre Carré, and the Hermitage Museum.

Accessibility is also ideal: tram and bus stops as well as the North/South metro line are within easy walking distance. Parking is available in nearby garages or – with a permit – right on the canal. Both Amsterdam Central Station and Amstel Station are close by.

Layout
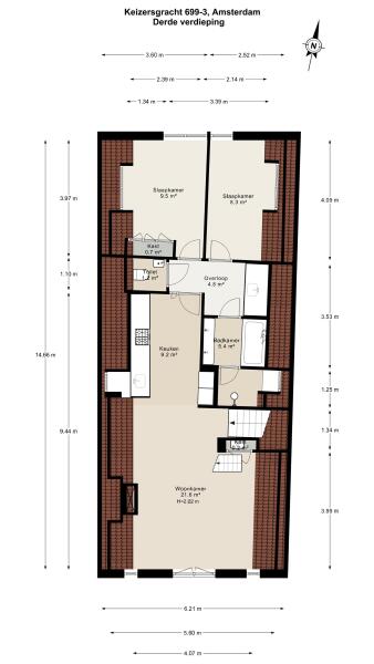
Second Floor
Private entrance on the second floor with a convenient under-stairs storage cupboard.

Third Floor
Entry into the spacious living area with views over the canal. A gas fireplace and exposed ceiling beams give the space exceptional charm. French windows open out to offer stunning views over the water.
The luxury open-plan kitchen is fully equipped with high-spec built-in appliances including a Quooker tap, dishwasher, Bora induction hob with integrated extractor, two Siemens Studioline (combi) ovens, and ample cupboard space.

A stylish steel-framed glass door leads to the hallway with separate WC and a practical utility room. Adjacent is a generous bathroom with double vanity, freestanding bath, and walk-in rain shower – all finished in elegant marble.
The two generously sized bedrooms are located at the rear of the apartment and overlook lush green courtyard gardens.

Fourth Floor
The top floor houses a spacious third bedroom, accessed via a fixed staircase. The mezzanine layout adds a touch of grandeur and architectural interest to the home.

In Summary
A tastefully renovated canal apartment that leaves nothing to be desired – top-tier living in the very heart of Amsterdam.

Key Features
- Apartment right of 81 m² (measured in accordance with NEN2580 guidelines)
- High-quality development by ROCK Vastgoed
- Beautiful national listed monument (Rijksmonument)
- Oak flooring in Hungarian herringbone pattern with underfloor heating
- Freehold property (no ground lease)
- Homeowners’ Association (VvE) currently being established
- Non-owner-occupancy clause applies
- Delivery in consultation
- Project notary: Buma Algera Notariaat

This information has been compiled with the utmost care. However, no liability is accepted for any incompleteness, inaccuracies, or otherwise, nor for the consequences thereof. All stated dimensions and surfaces are indicative.
The buyer is responsible for conducting their own due diligence regarding all matters of interest. The estate agent acts on behalf of the seller.
We recommend appointing a certified (NVM) estate agent to assist you during the purchasing process. If you have specific wishes regarding the property, we advise communicating these clearly to your purchasing agent in good time and carrying out your own investigation. If you choose not to engage professional representation, the law considers you sufficiently knowledgeable to assess all relevant matters independently.

Features

Transfer of ownership
Asking Price
€ 1.000.000 k.k.
Status
verkocht onder voorbehoud
Acceptance
in overleg
Construction
Kind of house
Bovenwoning
Building type
appartement
Construction period
1690
Energy rating
C
Bedrooms
3
Bathrooms
1
Surface Areas And Volume
Living Area
81 m2
Other indoor space
0 m2
Volume in cubic meters
242 m3
Facilities
Mechanische ventilatie
Tv kabel
Aan water
In centrum
Vrij uitzicht
Aan vaarwater
Baerz & Co Property Brochure

Brochure

Videos

Floor Plans

Verbeek Makelaars

Mariaplein 6
6522 AV Nijmegen

f.van.camp@verbeek-makelaars.nl
+31 24 22 00 111

www.verbeek-makelaars.nl

Information / Viewing request

Freek van Camp profile image
Freek van Camp
Real Estate Agent

Buying a Luxury Property in Amsterdam

Amsterdam offers a cosmopolitan lifestyle defined by heritage, connectivity, and discreet luxury. Residents benefit from a robust international community, curated services, and vibrant culture. The city’s enduring appeal lies in its blend of history, sophistication, and progressive spirit.